Two-Family 10
Projekt budynku dwulokalowego w stylu eleganckiej rezydencji - dworku.
Od frontu zwraca uwagę regularny układ okien, zadaszenie nad wejściem, a także pośredni gzyms, który optycznie poziomo dzieli elewację i nadaje jej lekkość. Reprezentacyjny charakter nadają budynkowi poziome boniowania, czarna stolarka okienna i drzwiowa, a także szprosy w oknach.
Od tyłu mamy natomiast układ wielkich okien tarasowych (również ze szprosami), a także balkon i taras na całą szerokość budynku. Ekskluzywny charakter został tutaj podkreślony przez balustrady z hartowanego szkła.
Styl budynku został również podreślony przez kolorystykę elewacji, gdzie kolor kremowy kontrastuje z czernią.
W rzucie budynek ma kształt prostokąta, kryty jest dachem dwuspadowym. Więźbę dachową zaprojektowano w postaci drewnianych wiązarów kratowych (dzięki czemu udało się też wygospodarować miejsce na niewielki stryszek).
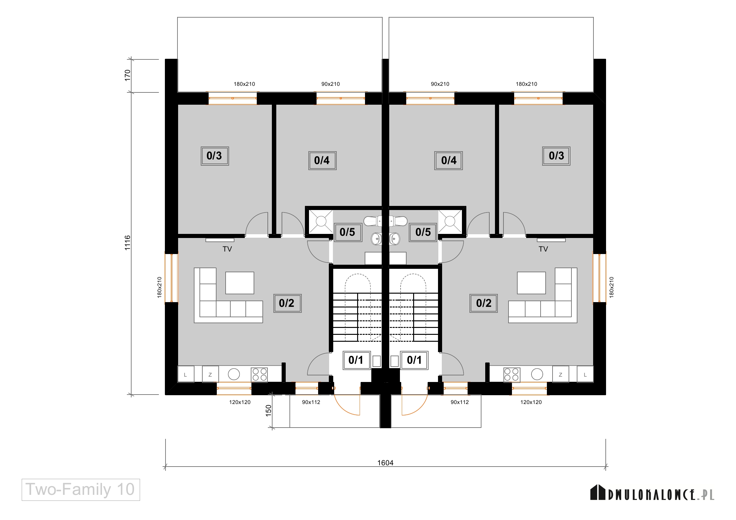
Na parterze zaraz przy wejściu mamy duży, dobrze oświetlony z dwóch stron salon z aneksem kuchennym, dalej łazienkę i dwa pokoje (które posiadają wyjście na taras i z których będzie się też roztaczał piękny widok na ogród). Bardzo dobrze została rozwiązana komunikacja w budynku, gdzie zaraz na wprost drzwi wejściowych znajdują się schody prowadzące na piętro.
Piętro to natomiast układ trzech bardzo jasnych i ustawnych pokoi (pokoje od tyłu posiadają dodatkowo wyjście na balkon), a także łazienka.










