Two-Family 02
Projekt o prostej i nowoczesnej bryle, w którym postawiono na maksymalną funkcjonalność, a także nowoczesne materiały powodujące skrócenie czasu budowy.
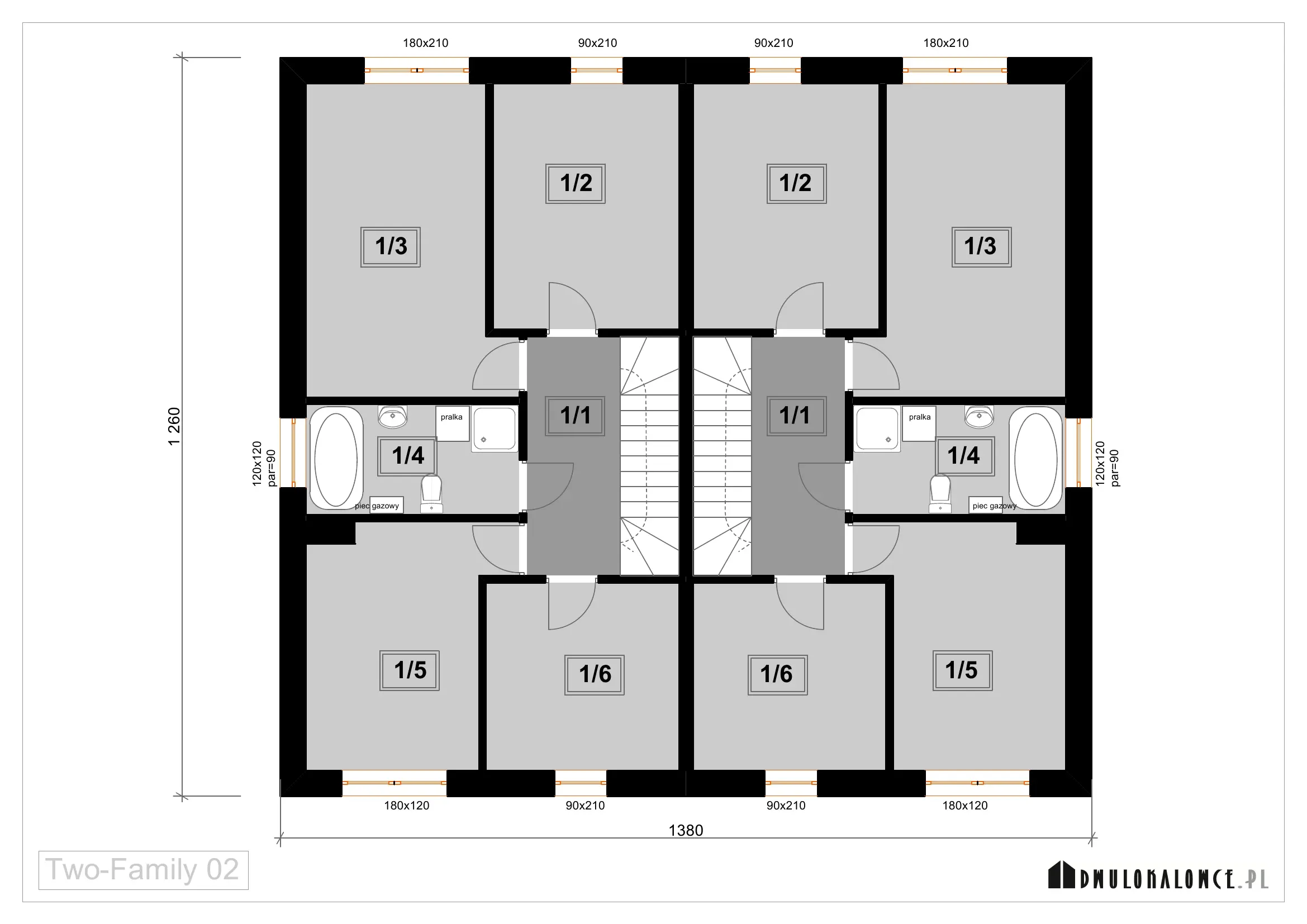
W rzucie budynek ma kształt bardzo zbliżony do kwadratu (optymalne wykorzystanie powierzchni), z garażem i wysokim poddaszem użytkowym (bez dużych skosów które zmniejszałyby jego powierzchnię użytkową), kryty jest dachem dwuspadowym. Dzięki zastosowaniu wiązarów attykowych możliwe było także wygospodarowanie dodatkowego miejsca na stryszek / schowek.
Elewację frontową urozmaica natomiast zastosowanie podcieni kryjących w sobie wejścia do budynku, a także dwukolorowe, biało-grafitowe malowanie (które jest przełamane w podcieniach lamelami drewnianymi) . Elewacja tylna to z kolei podwójne drzwi przesuwne na parterze stanowiące też wyjście na taras (przez które będzie piękny widok z salonu na ogród), a na piętrze duże okna na pełną wysokość.










